優れたデザインで問題を解決します。

建築デザインの基本は、空間をいかに仕切るかだと思いますが、その仕切り方ひとつで空間の価値は高まったり低められたりします。仕切り方は実に多様で、使われる方の目的や価値観などを尊重して最適な回答を模索します。優れたデザインは家族の相反する要求も同時に解決することがあります。皆が納得して幸せになれる家づくりを目指しましょう。

土地の可能性を生かしきること。

同じ条件の土地は2つとありません。その土地に建つ建物も最適な回答を模索すれば自ずと異なる内容となります。建主の要望などを最大限実現するためには、その土地の特性や諸条件を的確に読み取り、土地の可能性を生かしきることが重要です。

美しく付加価値の高いデザイン。

住宅もこれからは資産として評価される時代です。耐震性や建材の健康問題など安全な住宅であることはもちろんですが、使い勝手の良さや維持管理の容易さに加えて、なによりも飽きの来ない優れたデザインであることが大切です。優れたデザインの住宅は、住み手の生活を素敵に演出し、豊かな暮らしをもたらします。


 
本格的ピアノ練習室のあるピアニストと家族の家(茨城県つくば市)

富士山麓の別荘計画(富士桜高原別荘地内)

富士山麓の別荘計画(富士桜高原別荘地内)

富士山麓の別荘計画(富士桜高原別荘地内)

富士山麓の別荘計画(富士桜高原別荘地内)

富士山麓の別荘計画(富士桜高原別荘地内)

富士山麓の別荘計画(富士桜高原別荘地内)

富士山麓の別荘計画(富士桜高原別荘地内)

スキーリゾートに建つ別荘計画(写真) スキーリゾートに建つ別荘計画(写真)

スキーリゾートに建つ別荘計画(写真) スキーリゾートに建つ別荘計画(写真)

スキーリゾートに建つ別荘計画(写真) スキーリゾートに建つ別荘計画(写真)

 

 研究学園都市郊外の静かな環境の中、ピアノの練習に集中できる理想的な空間と家族の憩いと安らぎの空間の共存を目指しました。ピアノ練習室は、あくまでプロピアニストのための練習室としての機能と使いやすさを重視しましたが、ハウスコンサートにも対応可能な完璧な遮音性能と豊かな音響効果を持つ大きな空間を得るために、RCの構造躯体に木質系の反射板および吸音板で仕上げた本格的な音楽ホール仕様です。床は躯体振動の伝搬を防ぐために防振ゴムを介した浮き床構造を採用いたしました。ツーバイフォー工法採用という前提の中で敢えてピアノ練習室に壁式コンクリート構造を採用したのは、録音室なみの極めて高い遮音性能要求を満たすと同時に、大規模地震の際には人命と高価なピアノを守るシェルターとしての機能を確保するためです(ツーバイフォー工法で大きな空間を実現するのは構造的な問題があり、最大でも60平方メートルまでと制限されています)。

  吹き抜けとゆとりのある広さを持つ玄関ホール/ウェルカムホールからは南側の光と緑の庭園が見通せます。人を招いたコンサート開催時は楽屋として使用できるピアノ室に隣接したゲストルームは、外国からの賓客も受け入れることができるホテル仕様の空間です。ウェルカムホールとリビングに面したオフィスは、お子様の成長に合わせて勉強部屋として、また奥様の書斎としてお使いいただけます。そしてコンサート開催時は受付事務室や応接室として、あるいは将来的にはギャラリーとしてお使いいただける多目的スペースです。

  吹き抜けのリビングは御家族の生活の中心となる空間で、北側にはトップライトのある明るいダイニングと機能的なキッチン、南側には光溢れるコンサバトリーのようなガーデンルームを設けました。リビングの吹き抜けを見下ろす2階には大きな書架のあるフレックスルームがあります。全ての居室は平等に南側のバルコニーを介して庭に面した明るい空間です。特にお子様の個室はドーマーウィンドウから光が降り注ぐ、ロフトもある高い天井の夢を育む変化のある空間です。ツーバイフォー工法の特性を生かした屋根裏部屋は、広い収納スペースとしてご利用頂けます。一番静かな奥様の個室からはピアノ室の2階バルコニーへ直接出入りできます。

1.ピアノの練習やコンサートと家族の生活の共存
  24時間いつでも快適に練習が可能な完璧な遮音性能のある練習室は、質量の高いコンクリートの構造体により囲われ、さらに他の生活居室との間には廊下等の空間を介して絶縁する配置となっています。コンサート時の多数の来客にも配慮して、パブリックゾーンと家族の生活ためのプライベートゾーンを中央のウェルカムホールで明確に分けています。

2.完璧な遮音性能と豊かな音響空間を求める
  ピアノ練習室は約40帖(66u)の広さがあり、スタインウェイのコンサートグランドD−274とB−211の2台のピアノを設置し、コンサート開催時は30人程度まで収容できます。高い天井による大きな気積と変化のある形状、木質系の吸音材と反射板の組み合わせにより、ピアノに適した音響空間をつくりだしています。遮音対策としては、質量の大きなコンクリート構造体や特厚ガラスによる採光窓、防振ゴム浮き床構造を採用しています。

3.太陽の光を取り入れた明るい生活空間
  全ての居室はバルコニーやガーデンアーケードを介して南側の庭に面して配置されています。リビングルームは高い天井のある吹き抜け空間で、上部のドーマーウィンドウから光が降り注ぐ大変明るい空間です。キッチンとダイニングは北側に配置されていますが、西側2階の壁面に設けられた大きなスカイライトから光が降り注ぐ明るい空間となっています。

4.開放的で一体的な空間構成
  リビングの吹き抜け空間は、家族の生活の中心空間として、広がりのある一体的な空間構成としました。大型犬の定位置となる土間のガーデンルームを介して屋外テラスや芝生の庭園に容易に出ることができます。リビング吹き抜けを見ながら階段を上がると、玄関ホールの吹き抜けに面した2階のホールと、大きな壁面書架と吹き抜けを見下ろすワークベンチのあるフレックスルームがあります。

5.使い易いキッチンスペース
  キッチンからはダイニングおよびリビングルームまで見通せます。ゆとりのある広さのキッチンには、背面に食品庫などのユーティリティー空間があり、また勝手口からは屋内ガレージやガレージ2階の小屋裏収納スペース、表の主玄関、郵便、宅急便の受取、ゴミの処理などが1箇所で行うことができ、大変使い易く機能的なプランとなっています。

6.夢を育む子供部屋
  庭に面した2階南側のお子様の部屋には、外観的にもシンボリックなドーマーウィンドウがついています。室内はロフトのある高い天井やリビングの吹き抜けを見下ろすピクチャーウィンドウなどがあり、変化のある空間です。将来的にグランドピアノを入れて練習する場合でも、音響的に奥様の練習と干渉しないように配慮しました。

7.西側アパートの外部廊下などからのプライバシーに配慮した建物配置
  リビングの突き出しと屋根により、隣家からの視線を遮ります。特に寝室等の個室は深いバルコニーにより外部からは内部の様子が分かりにくい構造となっています。庭への眺めは南側の遊歩道の並木や、東側隣家の庭園を背景として奥行きのある自然な景観を望めます。

8.ピアノの搬出入
  門扉を開放するとトラックの荷台を直接玄関前のアプローチに付ける事ができます。また玄関ホールは大型のグランドピアノを転回できるだけの充分な広さがあります。ピアノ練習室の遮音性能を高めるために、外部からの扉を設けない計画としました。

9.雨に濡れずに出入りできるガレージと玄関
  屋内駐車スペースは勝手口からのみならず、玄関からも雨に濡れずに出入り可能です。ガレージの屋根は地盤の段差を生かして低く抑え、玄関アプローチ空間への圧迫感軽減と明るさ、さらに隣家アパートからのプライバシーにも配慮しました。ガレージは2台の車が自由に出し入れできる並列駐車で、母屋とは別棟となっているため車の振動やドアの開け閉めなどの騒音がピアノ練習室や寝室に伝わることを防止しています。

10.ガーデンルームの提案
  ガーデンルームはガラス開口で囲まれた土間空間です。英国風のコンサバトリーとして緑溢れるインドアガーデンにもなり、庭の緑を楽しみながらご家族やお友達とティータイムを楽しむオランジェリーとして多目的にお使い頂けます。大型犬などペットの居場所としても最適な空間です。

 

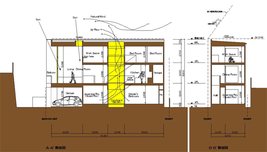
都心の狭小地−光と風を捉えるマジックハウス(東京都渋谷区)

富士山麓の別荘計画(富士桜高原別荘地内)

富士山麓の別荘計画(富士桜高原別荘地内)

富士山麓の別荘計画(富士桜高原別荘地内)

富士山麓の別荘計画(富士桜高原別荘地内)

富士山麓の別荘計画(富士桜高原別荘地内)

富士山麓の別荘計画(富士桜高原別荘地内)

富士山麓の別荘計画(富士桜高原別荘地内)

 

 都心に立地する崖や隣接する建物に囲まれた狭小旗竿敷地ですが、静かなポケットパークのような環境の中、降り注ぐ太陽の光を受け、敷地を通り過ぎる自然な風の流れを積極的に取り入れる工夫を施したマジックハウスです。天空からの光を取り入れ、建物上空の気流による吸引効果と対流による上昇気流を発生させる中庭を建物の中央に配置することにより、家全体に驚くほどの明るさと風通しを獲得することができます。建物の耐震性に関しては1階に和室、寝室、浴室などを配置することにより、3階建て構造に必要な壁量を1階に確保し、2階には開放的な大空間として約22帖のリビング・ダイニング空間を設けました。リビングルームは5.4mの天井高のある吹き抜け空間で、建物の顔となる西側の大きな開口部を介して外部のウッドデッキに繋がる広がりのある空間です。また天井壁側にはスカイライトを設けて、日中を通して明るい太陽光がさんさんと降り注ぐ空間となっています。3階は子供達の空間で、リビング吹き抜けを見下ろすワークスペースがあります。将来的には3つに分割して個室とすることも可能ですが、当面は2階と3階は間仕切りの少ないオープンプランで、立体的な一体感のある空間となっています。

1.太陽の光を取り入れる
  建物中央に光庭の役割も果たす中庭を設け、各居室(和室、寝室、子供室など)は、この中庭に面して大きな開口を設けることにより自然光を取り入れると同時に、建築基準法で要求される居室の採光規定をクリアしました。また、リビングルームには吹き抜け天井にトップライトを設けて、自然光が降り注ぐ明るい空間としました。

2.自然の空気の流れをつくる
  中庭のボイド空間は、煙突効果と上空を流れる気流による吸引効果により、室内の空気を吸い出し上空へ排出する流れを生み出します。周囲の崖や建物に囲まれて澱みがちな空気に自然な流れをつくりだし、いつも新鮮な室内環境を維持します。

3.耐震性に配慮した構造計画
  1階に壁量の多い小部屋を配置し、間仕切りの少ない開放的なリビングなど大空間は2階に配置することにより、地震に強い建物とします。

4.開放的で一体的な空間構成
  屋内と連続する外部デッキなど、屋内外合わせて30畳近い広がりのあるリビング・ダイニング空間が確保できました。ガラスで囲まれた中庭を介して、視覚的にはキッチンまで奥行き感のある一体的な空間構成です。また、玄関ホールに設けられた吹き抜け、中庭に面した階段の吹き抜け空間、リビングの吹き抜け空間などにより、上下階を繋ぎ一体感を与えながら変化のある空間を生み出しています。

5.子供達の成長に合わせて変化して使える家
  50m2ある3階の広い空間は、子供達のワークスペースとして、またお子様が成長するまでは、物置や書斎などとして使用できます。子供達が成長して個室が必要になった場合は、分割して3部屋確保できます。また、お子様が小さい内は主寝室にベッドを置けるだけの余裕のスペースがあります。

6.使い易い多目的キッチン
  キッチンからはメインダイニングおよびリビングルームまで見通せます。ゆとりのある広さのキッチンには、朝食コーナーや、子供達の遊び場コーナーもあり、また収納スペースの充実しています。

7.高い天井高
  1階と2階はハイスタッドにして2.7メートルの天井高を確保しました。

8.雨に濡れずに使える駐車スペースと玄関
  屋内駐車スペースは玄関から直接出入り可能で、雨の日でも濡れずに車を使用できます。

 

湘南の家(湘南トラッドハウス) 

スキーリゾートに建つ別荘計画(写真) スキーリゾートに建つ別荘計画(写真)

   遠くに湘南の海を望む崖を背にした造成宅地に建つ家で、全個室バルコニー付きで南向き、1階のリビング・ダイニングは敷地をいっぱいに使ったウッドデッキを活用して、屋外にも広がりのある一体的な使い方に配慮した、湘南の光と風を満喫できる湘南トラッドハウスです。

 

浦賀の家(海を望む屋上テラス) 

スキーリゾートに建つ別荘計画(写真) スキーリゾートに建つ別荘計画(写真)

   隣地を介して海を望む敷地に建つスタジオ付きの住宅で、住居部分は全て2階以上に設け、全居室にオーシャンビューのバルコニーや屋上テラスがあります。それらは外部階段でつながっており、海への眺望や屋上の庭園など身近な自然を楽しみながら、快適な生活を実現できる家づくりを目指しました。

 

鎌倉の家A(大きな屋根の下でペットと暮らす家 

スキーリゾートに建つ別荘計画(写真) スキーリゾートに建つ別荘計画(写真)

   屋内で飼う大型犬との共生を目指した加齢対応型の住宅です。ペットの専用居住空間は玄関と居間の間に設け、周囲に必要な設備を設けました。主な日常生活空間は全て既存の庭に面した建物の南側に設け、大きな庇に囲まれながら太陽の光を受けるバルコニー/ウッドデッキは居間の延長としても使える半屋外空間です。

 

房総の家(スローライフを楽しむ家) 

富士山麓の別荘計画(富士桜高原別荘地内)
富士山麓の別荘計画(富士桜高原別荘地内)

   遠くに太平洋を望む海辺の温暖な地に引退後の住まいとして建てる家で、背後の斜面との間にガーデニングや菜園を楽しむ庭を設け、自然と親しむスローな生活を実現できる、加齢対応型のバリアフリー住宅です。

 

アファンディ邸(インドネシアの家) 

海を望む2世帯別荘計画(茨城県ひたちなか市)

   2つの中庭を家の中央に配置して、機能別に4つのゾーニングに分けた広がりのある平屋建ての家。左下がエントランスとゲストルームゾーン、右下が使用人たちの居住区とサービスゾーン、広い庭に面した右上がリビングとダイニングのゾーン、そして同じく庭に面した左上が主人たちの寝室と生活ゾーンです。

 

鎌倉の家B(交差点に面した家) 

富士山麓の別荘計画(富士桜高原別荘地内)
富士山麓の別荘計画(富士桜高原別荘地内)
富士山麓の別荘計画(富士桜高原別荘地内)

   ゆるやかなスロープのある道路に合わせて、フラットルーフのリビングゾーンと、水平に伸びる切妻屋根のプライベートゾーンを半階構成で組み合わせ、2棟に囲まれた空間を水と緑で立体的に構成した庭としました。左側は茶室に向かって露地のある和風の趣きですが、交差点を曲がって右側はガレージと主玄関のある洋風な趣となる2面性のある家です。

 

アトリウムのあるモダン住宅 

公共の保養交流施設(岩手県東和町田瀬湖畔) 公共の保養交流施設(岩手県東和町田瀬湖畔)

   南北に長い敷地形状ですが全個室バルコニー付き南向き配置とし、北側にスカイライトを持つ2層吹き抜けのアトリウム・リビングを設けました。古代ローマからの贈り物である「アトリウム」が家族の絆を豊かにするゆとりの場として機能する住宅です。

 

ヤクルト本社八王子独身寮計画(公開競技設計応募案) 

公共の保養交流施設(岩手県東和町田瀬湖畔)  

   

 

主な住宅作品(プロジェクトを含む)

  • 横浜の家(神奈川県横浜市)/基本計画
  • 小さなガレージの増築(神奈川県茅ヶ崎市)/竣工
  • 那須高原の別荘(栃木県那須郡那須町)/工事着工待ち
  • 傾斜地に立つ絶景リゾートハウス(静岡県熱海市)/計画案
  • 本格的ピアノ練習室のあるピアニストと家族の家(茨城県つくば市)/計画案
  • 都心の住宅・光と風のデザイン(東京都渋谷区)/計画案
  • 狭小変形敷地の店舗付き住宅(神奈川県葉山町)/計画案
  • 和風の家(茨城県坂東市)/計画案
  • 海を楽しむオーシャンフロントの家(千葉県南房総市)/計画案
  • 転回広場に面した変形敷地の家(神奈川県相模原市)/計画案
  • 軽井沢の別荘(長野県北佐久郡軽井沢町)/計画案
  • 造成崖地の家(横浜市港南区)/計画案
  • 2世帯別棟の家(東京都世田谷区)
  • 集いの家(東京都町田市)/計画案
  • 歴史的和風住宅に付属する蔵の計画(湯河原町)/計画案
  • 富士山麓の別荘(山梨県富士桜高原別荘地)
  • Bayside Ranch(静岡県志太郡)
  • 湘南の家03(中郡大磯町)
  • 敷地9坪狭小住宅(東京都千代田区)
  • 鉄骨3階建て住宅リフォーム計画(東京都板橋区)
  • 海を望む別荘計画(茨城県ひたちなか市)
  • スキーリゾートに建つ別荘計画(韓国江原道)
  • 下町の倉庫併用住宅(東京都江東区)
  • 浦賀の家(海を望む屋上テラス)
  • アトリウムのあるモダン住宅
  • 茅ヶ崎の家(富士を望む見晴らしの家)
  • 和懐石料理店舗併設住宅(横浜市)/計画案
  • 横浜の家(傾斜地プロジェクト)
  • 奥多摩の家(森の館)
  • 湘南の家02(湘南トラッドハウス)
  • 鎌倉の家02(ペットと暮らす家)
  • 房総の家(スローライフを楽しむ家)
  • 湘南の家01/計画中
  • ハワイ島の別荘計画
  • ヤクルト本社八王子独身寮計画(公開設計競技)
  • アファンディ邸(インドネシア)
  • 鎌倉の家01
  • 山中湖の別荘計画

設計事務所勤務時代の主な担当プロジェクト(集合住宅)

  • 東京都都営桐ヶ丘団地再開発基本計画(第二期)
  • 東京都白髭西地区(3・5街区商業施設棟)建築設計
  • 東京都晴海2丁目再開発計画(トリトンスクエア内)